Rakennukset oman suunnitelman mukaan
Jos valmisrakennusmallimme eivät suoraan vastaa teidän toiveita. Ota yhteyttä ja kerro toiveesi, niin suunnitellaan yhdessä toiveidesi mukainen kokonaisuus.
Kehitämme jatkuvasti myös uusia prototyyppejä rakennuksista. Ota yhteyttä jos haluat kuulla protomalleista lisää!
Muita vaihtoehtoja
Revontulikota Alkovilla
Tämä Revontulikota tarjoaa tunnelmallista ja tasokasta majoitusta revontulien ja tähtien ihasteluun vieraillesi. Malli on varustettu tuvan lisäksi erillisellä makuualkovilla ja kylpyhuoneella. Tämä mahdollistaa jopa 4 henkilön yöpymisen kodassa. Suihkulla varusteltu tyylikäs kylpyhuone kruunaa kokonaisuuden.
Lue lisää
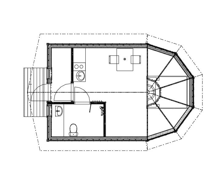
Iceberg
Moderni Iceberg valmisrakennus on suunniteltu vastaamaan vaativimpienkin matkailijoiden ja majoittujien tarpeita. Sen ulkoasu, suuret ikkunat ja erillinen sauna-pesuhuone tekevät siitä täydellisen valinnan niille, jotka arvostavat sekä tyyliä että toimivuutta.
Lue lisää
Revontulisauna
Revontulisauna tarjoaa ainutlaatuisen mahdollisuuden yhdistää perinteinen suomalainen saunakulttuuri ja pohjoisen luonnon taianomaiset maisemat. Panoraamaikkunalla varustettu sauna, tilava pesuhuone ja mukava pukuhuone tekevät tästä saunasta täydellisen paikan rentoutumiseen ja luonnon ihailuun.
Lue lisää
Saunallinen revontulikota
Saunallinen revontulikota tarjoaa ylellisen yhdistelmän modernia mukavuutta, luksusta ja luonnonläheisyyttä. Tilava 35 m² kokoinen valmisrakennus on suunniteltu tarjoamaan täydellisen paikan rentoutumiseen ja revontulien ihailuun.
Lue lisää
Revontulikota
Revontulikota tarjoaa ainutlaatuisen ja viehättävän majoituskokemuksen, jossa vieraasi voivat nauttia luonnon kauneudesta ja hiljaisuudesta. Tämä tyylikäs ja moderni majoitusvaihtoehto on suunniteltu erityisesti matkailijoille jotka arvostavat omaa rauhaa, mukavuutta ja revontulia.
Lue lisää
